Bürgerinformationssystem

Vorlage - 206-1/2018  

 
 
Betreff: Sanierung des Kreisberufsschulzentrums Schwäbisch Gmünd - Baufreigabe für die Generalsanierung des Hauptgebäudes sowie Berichterstattung über den Baufortschritt und über die Baukosten
Status:öffentlich  
Federführend:Geschäftsbereich Hochbau und Gebäudewirtschaft   
Beratungsfolge:
Kreistag
06.11.2018 
Sitzung des Kreistags ungeändert beschlossen   
Anlagen:
Anlage - Ansichten
Anlage - Bauabschnitte
Anlage - Untergeschoss
Anlage - Obergeschoss
Anlage - Erdgeschoss
Anlage - Ansicht Fassade 2 (Angefordertes Dokument nicht im Bestand)
Anlage - Ansicht Fassade 1 (Angefordertes Dokument nicht im Bestand)
Anlage-KostenGeSaKBSZGD
Anlage-ErweiterungNord
Anlage-ErweiterungNordundOst

 

 

Antrag der Verwaltung

 

Der Kreistag beschließt:

 

  1. Der von der Verwaltung in Zusammenarbeit mit dem Generalplaner KTL-Architekten (Rottweil) und den Schulleitungen erarbeiteten Konzeption zur Generalsanierung des Hauptgebäudes am Kreisberufsschulzentrum Schwäbisch Gmünd wird zugestimmt.

 

  1. Für die Generalsanierung des Hauptgebäudes wird auf der Grundlage der Planung und der Kostenberechnung des Generalplaners KTL-Architekten vom 11.10.2018 über 39.988.000 € die Baufreigabe erteilt.

 

  1. Die Verwaltung wird mit der Ausschreibung der erforderlichen Baumaßnahmen beauftragt, damit der Baubeginn im Juni 2019 erfolgen kann. Sie wird regelmäßig den zuständigen Gremien über den Baufortschritt und die Baukostenentwicklung berichten.

 

 

Anmerkung:

Der Ausschuss für Bildung und Finanzen hat sich am 27.10.2018 entgegen der Empfehlung der Verwaltung für die Realisierung von vier neuen Klassenräumen und drei neuen Verwaltungsräumen an der Ostseite des Hauptgebäudes mit zusätzlichen Kosten von 800.000 € ausgesprochen. Die Gesamtkosten der Generalsanierung betragen deshalb 39.988.000 €.

 

 

 

 

 


Sachverhalt/Begründung

 

1. Historie

 

Der ursprüngliche Sanierungsaufwand im Hauptgebäude des Kreisberufsschulzentrums Schwäbisch Gmünd aus dem Bauzeitraum 1972-1976 bezog sich primär auf den vorbeugenden Brandschutz und die Ertüchtigung der Elektroverteilung.

 

Im Jahr 2015 wurde ein Architektenwettbewerb durchgeführt und das Planungsteam der ARGE 1 vorerst bis Leistungsphase 4 beauftragt. Dies beinhaltet neben der Bestandsaufnahme die Vorentwurfs-, Entwurfs- und Genehmigungsplanung, d.h. die Einreichung der Planungskonzeption bei der Baurechtsbehörde.

 

Auf der Grundlage der Baugenehmigung und der Beschlussfassung im Kreistag am 19.12.2017 wurde im Januar 2018 mit der ARGE 2, einem erfahrenen und leistungsstarkem Planerteam, bestehend aus dem Architekturbüro KTL-Architekten aus Rottweil, den Fachingenieuren für Heizung, Lüftung, Sanitär Herp aus Sarlach sowie dem Elektroplaner LDS Stockhammer aus Aalen in die weitere Planung eingestiegen.

 

Aufbauend auf den Ergebnissen und Erkenntnissen der bis dahin erstellten Planungsleistungen und unter Berücksichtigung der Bauzeit des Hauptgebäudes wurden im Rahmen einer ersten Baubesprechung weitergreifende Untersuchungen sowie eine flächendeckende Schadstoffbeprobung empfohlen. Dadurch sollten sowohl bauverzögernde Überraschungen im Rahmen der Ausführung vermieden werden als auch Erkenntnisse als Grundlage für den erforderlichen Sanierungsumfang, erforderliche Schutzvorkehrungen, Sanierungsabläufe und für die Einteilung der Sanierungsabschnitte gewonnen werden.

 

Da dies ein fachspezifisches Wissen voraussetzt, wurde das Büro Z.E.T consult GmbH aus Renningen mit der Schadstoffbeprobung beauftragt, da sich dieses Büro auf Schadstoffbeprobungen und Schadstoffsanierungen spezialisiert hat und auf langjährige Erfahrung zurückblicken kann.

 

Die durchgeführte Untersuchung richtete sich speziell auf Schadstoffe wie Asbest, PCB, PAK, Formaldehyd etc.. Untersucht wurden alle wesentlichen Bauteile wie Estriche, Bodenbeläge, Spachtel-, Fugen- und Dichtungsmaterialien, Außenfassade, Decken-, Zwischen- und Trennwände, Farbanstriche, Wandverkleidungen, Raumluftkanäle und Rohrleitungsdämmstoffe.

 

Die Prüfergebnisse der Probeentnahmen ergaben, dass in verschiedenen Bauteilen Schadstoffe vorhanden sind, von denen jedoch bei Belassung des gegenwärtigen Zustands keine Gefahr ausgeht. Möglich Gefährdungen können sich jedoch dann ergeben, wenn Eingriffe in diese Bauteile erfolgen. Insofern werden die anstehenden Sanierungsmaßnahmen entsprechende Schutzvorkehrungen erfordern.

 

Auf Grund der Untersuchungsergebnisse wurden im Kreisberufsschulzentrum umgehend Luftmessungen durchgeführt, um mögliche Belastungen und damit verbundene Gefährdungen festzustellen. Die Auswertung der Luftmessungen in den Räumen ergab, dass die gesetzlichen Grenzwerte an allen Messpunkten eingehalten sind und somit für die Nutzer ein gefahrloser Aufenthalt im Gebäude weiterhin gegeben ist. 

 

Der Ausschuss für Bildung und Finanzen wurde am 16.07.2018 über die Ergebnisse informiert und folgte der Empfehlung der Verwaltung, sämtliche Schadstoffe zu entfernen, um ein schadstofffreies Schulgebäude zu erhalten.

In der Zwischenzeit wurde in einer Informationsveranstaltung am 17.09.2018 für die drei Schulleitungen und die gesamte Lehrerschaft sowie in einer öffentlichen Informationsveranstaltung für alle Eltern und die Schülerinnen und Schüler am 24.09.2018 umfassend über die Ergebnisse der Schadstoffuntersuchung berichtet und Fragen beantwortet.

 

 

2. Sanierungskonzeption mit vier Bauabschnitten

 

Ursprünglich war die Durchführung der Sanierung des Hauptgebäudes des Kreisberufsschulzentrums Schwäbisch Gmünd in 18 Bauabschnitte vorgesehen. Die Planung sah vor, dass die Bereitstellung von Ausweichräumen innerhalb des Schulgebäudes sowie mit der Herstellung der Erweiterungsräume im Erdgeschoss organisiert hätte werden können.

 

Durch das Vorhandensein von Schadstoffen und die erforderlichen Schutzvorkehrungen bei den Sanierungsarbeiten bedarf es eines größeren Sanierungsumfang als bisher geplant. Da alle schadstoffbelasteten Bauteile entfernt werden, ist die Sanierung des Hauptgebäudes einer Generalsanierung gleichzusetzen.

 

Solange an den Bauteilen keine verändernden Maßnahmen wie Bohrungen oder Rückbauten durchgeführt werden, geht von diesen keine Gefahr aus. Bei der geplanten Generalsanierung gilt es die Freisetzung von gebundenen Fasern zu vermeiden. Unter diesen Gesichtspunkten ist die Einteilung in größere Bauabschnitte erforderlich.

 

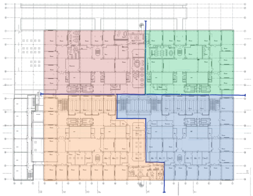
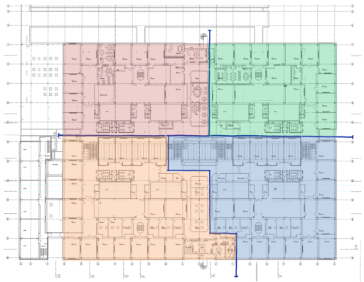
Aus diesem Grund wurde ein neues Sanierungskonzept mit vier Quadranten entwickelt. Dabei beschreibt ein Quadrant jeweils alle Räume vom Untergeschoss bis ins erste Obergeschoss inklusive Lüftungszentrale und Technikräumen.

 

Abb.1: Einteilung des Hauptgebäudes in vier Quadranten

 

Bevor mit den eigentlichen Sanierungsarbeiten begonnen werden kann, müssen in einem ersten Schritt die schadstoffbelasteten Bauteile wie Außenfassade, Decke, Bodenbeläge, Lüftungskanäle, Elektrotechnik, nichttragende Innenwände und Türen entfernt werden. Hierzu wird der zu sanierende Quadrant mit dichten Trockenbauwänden eingehaust. Durch ein spezielles Unterdruckverfahren und Vierkammersystem ist sichergestellt, dass keine Schadstoffe in benachbarte Bereiche gelangen. Nach den Abbrucharbeiten werden die jeweiligen Bereiche gereinigt und es erfolgt eine Kontrollmessung. Erst wenn diese sog. Freimessung bestätigt, dass keine Schadstoffe mehr vorhanden sind, wird mit dem Innenausbau im jeweiligen Sanierungsquadranten begonnen.

 

Auf diese Weise werden pro Quadrant zunächst alle Schadstoffe beseitigt, bevor mit der eigentlichen Sanierung begonnen wird. Bei dieser Vorgehensweise muss lediglich die Abbruchfirma über den notwendigen Sachkundenachweis beim Umgang mit Schadstoffen verfügen. Der Innenausbau kann dann durch Firmen ohne spezielle Nachweise erfolgen.

 

Für den Ausbau der schadstoffbelasteten Bauteile werden drei Monate und für die Durchführung der Sanierungsmaßnahmen neun Monate veranschlagt. Pro Quadrant wird mit einem Zeitbedarf von einem Jahr gerechnet. Da immer nur ein Quadrant saniert werden kann, ist von einem Gesamtzeitbedarf für die Generalsanierung von vier Jahren auszugehen.

 

Die Planung sieht vor, dass die eigentliche Schadstoffsanierung primär in den Sommerferien erfolgen soll, um Beeinträchtigungen des Schulbetriebs so gering wie möglich zu halten.

 

Die in den vier Sanierungsabschnitten jeweils betroffenen Theorie- und Fachräume werden gemeinsam mit den Schulverwaltungen interimsweise in der Gebäudemodulanlage auf dem östlichen Parkplatz untergebracht.

 

 

3. Sanierungsumfang Hauptgebäude

 

Unter Berücksichtigung der vorhandenen Schadstoffe wurde definiert, dass im Rahmen der geplanten Generalsanierung schadstoffbelastete Bauteile ausgebaut und das Gebäude nahezu in seinen Rohbauzustand versetzt wird. Zeitgleich werden in regelmäßigen Abständen während der gesamten Bauzeit Luftmessungen innerhalb des zu sanierenden Quadranten aber auch in den drei benachbarten Quadranten durchgeführt, um Verunreinigungen der Luft ausschließen zu können. Jeweils nach erfolgtem Rückbau der schadstoffbelasteten Bauteile wird eine Freimessung durchgeführt. Erst dann wird mit der eigentlichen Sanierung begonnen.

 

Dabei sollen folgende Maßnahmen durchgeführt werden:

 

  • Optimierung der Raumkonzeption
  • Herstellung von drei Räumen für die Verwaltung im Erdgeschoss auf der Ostseite
  • Schaffung neuer Fluchttreppen
  • Erneuerung der Außenfassade inkl. neuer außenliegenden Verschattungselemente unter Berücksichtigung der aktuellen Anforderungen der EnEV
  • Einbau einer kontrollierten Be- und Entlüftung mit 1,5-fachen Luftwechsel
  • Einbau einer Klimatisierung nur für die innenliegenden Räumen
  • Vollständige Erneuerung der Wasser- und Abwasserleitungen
  • Erneuerung aller WC-Anlagen
  • Erneuerung der Niederspannungs- und Mittelspannungshauptverteilung
  • Erneuerung der gesamten Elektroinstallation


  • Erneuerung der Heizungsleitungen und -körper
  • Erfüllung sämtlicher Brandschutzauflagen (Brandmeldeanlage, Sicherheitsbeleuchtung, elektrische Lautsprecheranlage etc.)
  • Einbau neuer Innenwände
  • Einbau neuer abgehängter Akustikdecken inkl. energieeffizienter LED-Beleuchtung
  • Erneuerung sämtlicher Bodenbeläge
  • Malerarbeiten

 

 

4. Baustelleneinrichtung

 

Damit die Maßnahme ohne Komplikationen durchgeführt werden kann, bedarf es einer umfangreichen Baustellenlogistik. Hierbei müssen Lagerräume sowie Räume für Baubesprechungen / Baubüros bereitgestellt werden. In diesem Zusammenhang müssen Baustellen- und Schülerverkehr aufeinander abgestimmt werden.

 

4.1 Standort

 

In dem Zusammenhang wurden verschiedene Standorte auf dem Areal untersucht, auf denen die Baustelleneinrichtung angeordnet werden kann. Damit die Bauabwicklung effektiv durchgeführt werden kann, soll als Hauptstandort für die Baustelleneinrichtung ein Teil der Parkflächen südlich der Werkstätten herangezogen werden.

 

Für die Kompensation der wegfallenden Parkplätze erarbeitet die Verwaltung derzeit Lösungsvorschläge.

 

4.2 Versetzen der Containeranlage von Ellwangen nach Schwäbisch Gmünd

 

Zwischenzeitlich ist der Bedarf an Unterkünften für Flüchtlinge zurückgegangen, sodass auf die kreiseigene Containeranlage in Ellwangen verzichtet werden kann.

 

Die Containeranlage Ellwangen ist mit ihrer Abmessung und Ausstattung perfekt geeignet, um den Anforderungen an die Baustelleneinrichtung gerecht zu werden. Mit der Aufstellung der Containeranlage aus Ellwangen kann die notwendige Baustelleneinrichtung bereitgestellt und somit Kosten für externe Baustellencontainer eingespart werden. Die Anlage kann in ihrem jetzigen Zustand ohne Sanierungsmaßnahmen im Innenraum versetzt werden.

 

 

Abb. 2: Lage der Baustellenreinrichtung südlich der Werkstätten

Für das Umsetzen der Containeranlage von Ellwangen nach Schwäbisch Gmünd, die Herstellung der Fundamente und der Grundleitungsanschlüsse entstehen Kosten in Höhe von rund 250.000 Euro, die in der Kostenberechnung enthalten sind.

 

Für die Generalsanierung des Hauptgebäudes sind vier Jahre veranschlagt. Die Umsetzung der kreiseigenen Containeranlage ist bei dieser Dauer wirtschaftlicher, als wenn die Baustellenlogistik durch die jeweiligen Firmen bereitgestellt werden würde.

 

 

5. Weitere notwendige vorbereitende Maßnahmen

 

In Anbetracht dessen, dass sowohl der Schulhof als auch die umliegenden Erschließungswege und Parkflächen des Kreisberufsschulzentrums Schwäbisch Gmünd durch die Baumaßnahme und die Baustelleneinrichtung innerhalb der nächsten vier Jahre stark in Mitleidenschaft gezogen werden, muss der Schulhof voraussichtlich ab dem Jahr 2024 saniert werden. Auf diese Weise kann den Schülerinnen und Schülern ergänzend zum sanierten Hauptgebäude ein adäquater Außenbereich bereitgestellt werden.

 

Im Zusammenhang mit der Schulhofsanierung muss die bis dahin bestehende Ringleitung, die für die Wasserzuführung der Sporthalle, Mensa und der beiden Rundbauten erforderlich ist, saniert werden.

 

Die genaue Planung der Außenanlagen wird voraussichtlich im Jahr 2023 den zuständigen Gremien vorgestellt.

 

 

 

6. Geplanter zeitlicher Ablauf der Sanierung

 

27.10.2018:   Sondersitzung des Ausschusses für Bildung und Finanzen:

   Vorberatung des Sanierungskonzepts

 

06.11.2018:  Vorstellung des Sanierungskonzepts und möglicher

   Baufreigabebeschluss im Kreistag

 

Februar 2019: Versetzen der Modulanlage aus der Krähe an das

   Kreisberufsschulzentrum auf das Hardt

   Durchführung von Umbauarbeiten

 

April-Mai 2019: Beginn der Auslagerung von Klassenzimmern

   (Umzug der Schüler aus dem 1. Quadranten in die Modulanlage)

 

Sommer 2019: Beginn der Generalsanierung, die aus folgenden sechs Bauab-                                          schnitten besteht:

 

 

 


Wesentliche Inhalte der Bauabschnitte

 

 

1. Bauabschnitt

 

August 2019:  Beginn Schadstoffsanierung/Reinigung/

   Kontrollmessung im 1. Quadranten

 

November 2019: Beginn Sanierung des 1. Quadranten (Fassade/Innenausbau)

 

 

2. Bauabschnitt

 

August 2020:  Beginn Schadstoffsanierung/Reinigung/

   Kontrollmessung im  2. Quadranten

 

November 2020: Beginn Sanierung des 2. Quadranten (Fassade/Innenausbau)

 

 

3. Bauabschnitt

 

August 2021:  Beginn Schadstoffsanierung/Reinigung/

   Kontrollmessung im 3. Quadranten

 

November 2021: Beginn Sanierung des 3. Quadranten (Fassade/Innenausbau)

 

 

4. Bauabschnitt

 

August 2022:  Beginn Schadstoffsanierung/Reinigung/

   Kontrollmessung im  4. Quadranten

 

November 2022: Beginn Sanierung des 4. Quadranten (Fassade/Innenausbau)

 

 

5. Bauabschnitt

 

Frühjahr 2023:                      Finale Sanierung der Flure

 

Herbst 2023:  Baufertigstellung (Dauer der Gesamtmaßnahme rund vier Jahre)

 

 

 

Vor dem Beginn der Sanierungsmaßnahmen werden die Theorie- und Fachräume sowie Teile der Schulverwaltung des jeweils betroffenen Sanierungsquadranten in die Gebäudemodulanlage auf dem östlichen Parkplatz ausgelagert.

 

 


7. Zusammenstellung der Baukosten

 

Generalsanierung des Hauptgebäudes

Kostenberechnung KTL-Architekten vom 11.10.2018

36.226.000

Abbruch und Schadstoffsanierung

3.762.000 €

Gesamtaufwand

39.988.000 €

 

Nachrichtlich:

Mögliche Preissteigerung

1.722.000 €

Digitalisierungsoffensive

870.000 €

Neugestaltung der Außenanlagen (ab 2024)

2.000.000 €

 

Förderung

Bewilligter Landeszuschuss (18.07.2018)

7.659.000 €

Zu beantragender Landeszuschuss zwischen 5,0 und 7,5 Mio. €

---

Eigenmittel des Ostalbkreises über einen Zeitraum von fünf Jahren

rund 27,0 Mio. €

 

 

Die Kostenberechnung des Generalplaners KTL-Architekten wurde einer kritischen Prüfung unterzogen und auf Einsparungsmöglichkeiten hin analysiert und diese genutzt. Dennoch verbleibt ein Kostenaufwand für die reine Generalsanierungsmaßnahme mit 36.226.000 €. Die Abbruch- und Entkernungsarbeiten sowie die Schadstoffsanierung verursachen einen weiteren Kostenaufwand von 3.762.000 €, womit der Gesamtaufwand bei 39.988.000 € liegt.

 

Die Erfahrungen der letzten Jahre mit der sehr starken Baukonjunktur lassen auch für die Generalsanierungsmaßnahme eine Preissteigerung über deren Dauer von rund 4-5 Jahren erwarten. Diese mögliche Preissteigerung wird mit 1.722.000 € beziffert.

 

Für die Digitalisierung des beruflichen Schulzentrums Schwäbisch Gmünd mit der flächendeckenden Bereitstellung von WLAN und der dazugehörigen IT-Infrastruktur sind 870.000 € vorgesehen. Dieser Aufwand wäre auch ohne Generalsanierung entstanden. Durch die Installation im Zuge der Baumaßnahme ergeben sich Synergieeffekte.

 

Die Wiederherstellung bzw. Neugestaltung der Außenanlagen nach der erfolgten Generalsanierungsmaßnahme wird derzeit mit einem Kostenaufwand von rund 2,0 Mio. € angenommen und soll dem Kreistag im Jahr 2023 vorgestellt werden.

 

Zur großen Freude von Herrn Landrat Pavel und der Schulleitungen des Kreisberufsschulzentrums Schwäbisch Gmünd überreichte Herr Regierungspräsident Wolfgang Reimer am 18. Juli 2018 vor Ort einen Förderbescheid über 7.659.000 € aus dem Schulsanierungsprogramm (Kommunalinvestitionsförderungsgesetz).

Die Verwaltung befindet sich in Gesprächen mit dem Regierungspräsidium Stuttgart über eine weitere mögliche Förderung aus diesem Schulsanierungsprogramm.

 

Der Geschäftsbereich Hochbau und Gebäudewirtschaft prüft Fördermöglichkeiten in den Bereichen Lüftungs- und Beleuchtungserneuerung im Bundesprogramm „Nationale Klimaschutzinitiative“.

 


Finanzierung und Folgekosten

 

Für die Generalsanierung ist im Haushaltsplan 2019 sowie in der Mittelfristigen Finanzplanung (MiFriFi) ein Aufwand in Höhe von 39.988.000 € zu etatisieren. Inklusive Digitalisierung ist ein Gesamtaufwand in Höhe von 40.858.000 € zu finanzieren. Die mögliche Preissteigerung ist in der MiFriFi nur dann zu berücksichtigen, sofern diese zum Tragen kommt. Die Neugestaltung der Außenanlage in Höhe von 2,0 Mio. € ist als separates Projekt ab 2024 zu etatisieren.

 

Abzüglich möglicher Zuschüsse des Landes Baden-Württemberg in Höhe von voraussichtlich rund 13,0 Mio. € sind damit im Haushaltsplan 2019 und in den Folgejahren Kreismittel in Höhe von 27,8 Mio. € zu finanzieren.

 

Von den im Haushalt 2019 eingeplanten 6,8 Mio. € sowie einer Verpflichtungsermächtigung in Höhe von 2,5 Mio. € werden für die Verlegung der Gebäudemodulanlage von der Krähe auf das Hardt sowie für die Verlegung der Buswendeplatte 4,4 Mio. € benötigt (1,4 Mio. € stehen aus Haushaltsmitteln 2017 und 2018 zur Verfügung). Somit stehen im Haushalt 2019 4,9 Mio. € für die Sanierung des beruflichen Schulzentrums Schwäbisch Gmünd zur Verfügung. Für die Gesamtfinanzierung sind in den Haushaltsjahren 2020 - 2024 jeweils 5,2 Mio. € einzuplanen.

 

Die in der Sitzung des Ausschusses für Bildung und Finanzen am 27.10.2018 beschlossenen Mehrkosten in Höhe von 800.000 Euro für die Realisierung der zusätzlichen Räume werden über eine zusätzliche Kreditaufnahme in gleicher Höhe im Haushalt 2019 finanziert.

 

 

 

 

 

 


Anlagen

 

Anlage 1 Planunterlagen (Grundrisse, Ansichten, Perspektiven)

Anlage 2 Kostenberechnung vom 29.10.2018

Anlage 3 Grundrissplan des Erdgeschosses mit Darstellung der Erweiterungsflächen

 

 

 

Sichtvermerke

 

Geschäftsbereichsleiter

__________________________________________

 

Bihr

 

 

Dezernent I      

__________________________________________

 

Wolf     

 

 

Dezernat II

__________________________________________

 

Kurz

 

 

Landrat

__________________________________________

 

Pavel

 

Anlagen:  
  Nr. Name    
Anlage 4 1 Anlage - Ansichten (4200 KB)    
Anlage 5 2 Anlage - Bauabschnitte (507 KB)    
Anlage 8 3 Anlage - Untergeschoss (457 KB)    
Anlage 7 4 Anlage - Obergeschoss (1126 KB)    
Anlage 6 5 Anlage - Erdgeschoss (1282 KB)    
Anlage 10 6 Anlage - Ansicht Fassade 2 (Angefordertes Dokument nicht im Bestand)    
Anlage 9 7 Anlage - Ansicht Fassade 1 (Angefordertes Dokument nicht im Bestand)    
Anlage 1 8 Anlage-KostenGeSaKBSZGD (27 KB)    
Anlage 2 9 Anlage-ErweiterungNord (1293 KB)    
Anlage 3 10 Anlage-ErweiterungNordundOst (1357 KB)